Carbon fiber reinforced polymer in the old building

Carbon fiber reinforced polymer

Project Overview

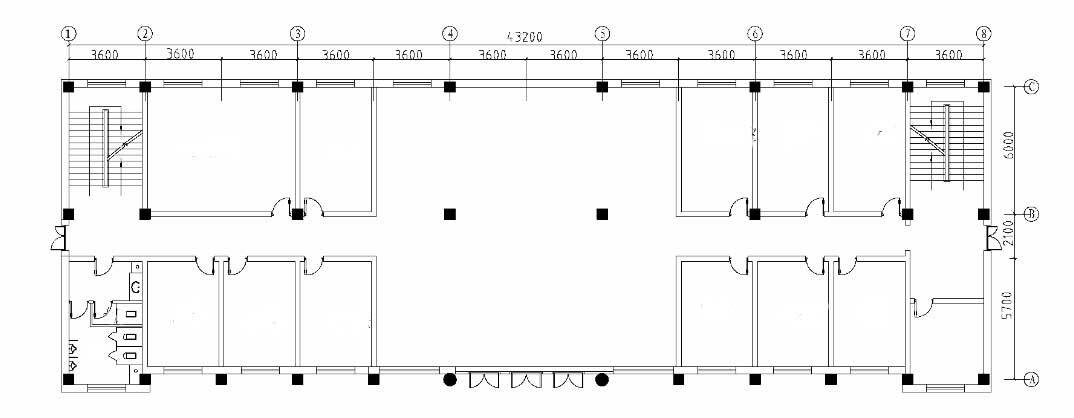
An office building was originally designed as a four-story reinforced concrete frame structure with a basement, and a reinforced concrete retaining wall around the basement. The foundation was a single base band waterproof board under the column. It was completed in 1996 and has a total construction area of 312,416 square meters. The concrete designation of beam and column is C30, and the seismic fortification intensity is 8 degrees. The height from the basement to the fourth floor is 3.9, 4.2, 3.6, 3.3, and 3.3m, respectively. The plan of the first floor is shown in Figure 1. In 2006, due to business needs, it was approved to add two floors above to become a six-story basement building, of which the fifth floor height was 3.3m and the six floor height was 5.1m.


1.jpg


Determination of reinforcement plan

The axial compression ratio of the column is an important factor that affects the failure shape and deformation ability of the column. The greater the axial compression ratio of the column, the smaller the deformation capacity of the column. In the case of high axial compression ratio, multi-reinforcement can not effectively change the ductility of the column. Therefore, the column must be reinforced to limit the axial compression ratio of the column.


The axial compression ratio of the middle column in the basement and part of the first floor needs to be strengthened, and the beam meets the requirements. The column reinforcement design considers the following options:

(1) Reinforcement of reinforced concrete column enclosure

(2) Reinforcement of concrete-filled steel tube columns

(3) Carbon fiber reinforced polymer reinforcement


Considering various factors such as engineering cost, construction damage to the original basement decoration and construction period, the final decision was made to reinforce the concrete column and beam-column joints by using in-vitro reinforced carbon fiber reinforced polymer reinforcement technology that is convenient for construction and does not change the size of the components.


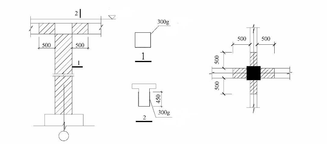
This project uses Horse carbon fiber reinforced polymer for reinforcement, and the tensile strength is 3600MPa. The elastic modulus is 230,000 MPa. The thickness of the single layer is 01167mm. The carbon fiber is wrapped with full height and no gap.


1.jpg


After being reinforced with carbon fiber reinforced polymer, the compression capacity of the concrete column has been significantly improved.The axial compression ratio can therefore meet the axial compression ratio limit of the frame structure column of 8 degrees in the specification, which shows that the carbon fiber reinforcement can effectively improve the compression capacity of the concrete column.


1.jpg


Conclusion

The project was completed and used in October 2006 after adding layers and strengthening. After one year of use, there is no abnormality in the reinforced parts, and the building is used normally, which is praised by the owner. Through the practice of this project, we see:


(1) First of all, when adding layers to the original structure, the choice of scheme is extremely important. A suitable solution can obtain the most satisfactory results after the least amount of reinforcement.


(2) Secondly, for the concrete column that does not meet the requirements of seismic ductility, carbon fiber reinforced polymer can be used to wrap the surface of the column for reinforcement. This method is simple in construction, short in construction period, and does not affect the function of the building.


Horse Construction Recommended Products

You can find anything here you are in need of, have a trust trying on these products, you will find the big difference after that.

HM-20 Unidirectional Carbon Fiber Wrap

High strength, unidirectional carbon fiber wrap pre-saturated to form a carbon fiber reinforced polymer (CFRP) wrap used to strengthen structural concrete elements.

See more >

HM-180C3P Carbon Fiber Adhesive

Good impregnation carbon fiber adhesive for applying carbon fiber reinforced polymer(CFRP) wrap for structural strengthening

See more >

HM-30 Unidirectional Carbon Fiber Fabric

High strength, unidirectional carbon fiber fabric pre-saturated to form a carbon fiber reinforced polymer (CFRP) fabric used to strengthen structural concrete elements.

See more >

Back
Top
Close